ZJD系列刷式自洁式过滤器
一、功能与用途
Z J D系列刷式自洁式过滤器适用于废水处理流程,钢铁厂冲渣水、电厂流程及冷却水,造纸工序及进水,化工生产流程及灌溉系统等场合,用以滤去水中3500-80微米粒径的各种硬质颗粒,确保系统的安全可靠运行。
二、设备结构与工作原理
ZJD系列刷式自洁式过滤器滤件采用高强度的Johnson滤网,具有处理量大、使用寿命长、清洗效率高等特点。本机采用压差控制、定时控制自动清洗滤网。当过滤器进出口压差达设定值或定时器达到设定时间时,电动控制箱发出信号驱动电机转动,同时排污阀打开。吸附在滤网上的杂质微粒被转动的钢丝刷刷下,随水流从排污阀排出。当过滤器进出口压差恢复正常或定时器设定时间结束后,电机停止运转,电动排污阀关闭。整个过程中,物料不断流,实现了连续化、自动化生产。

正常过滤状态
清洗状态
工作原理图
三、常用规格与技术参数

注:工作压力大于4.0MPa另行设计
四、结构形式及外形尺寸

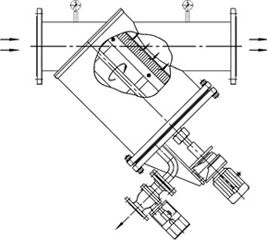
ZJDYⅠ型刷式自洁式过滤器
ZJDYⅠ型刷式自洁式过滤器
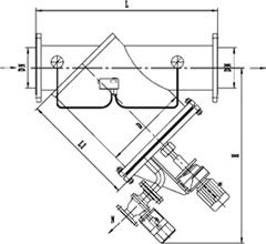
ZJDLⅠ型刷式自洁式过滤器

ZJDLⅠ型刷式自洁式过滤器(DN>300)
ZJDLⅠ型刷式自洁式过滤器(DN≤300)

注:本过滤器根据用户工艺要求,可设计成进出口位于同一高度。
五、结构形式及外形尺寸
ZJDFⅠ型刷式自洁式过滤器

注:筒体直径≥500mm时, 过滤器封头采用椭圆形封头形式。

ZJDFⅠ型刷式自洁式过滤
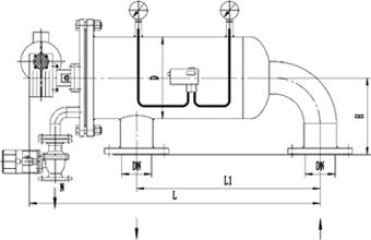
ZJDT Ⅰ型刷式自洁式过滤器
ZJDT Ⅰ型刷式自洁式过滤器



