自洁式过滤器使用指南
产品安装与使用指南
为了维修方便,ZJD系列自洁式过滤器安装时应在进出口设阀门,并做旁通管路;为了防止过大的杂物进入过滤器,建议在过滤器的入口端安装固定过滤网。
另外,安装时应注意外壳上的箭头方向与水流方向一致。
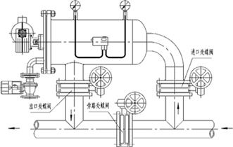
下图为过滤器的几种安装形式,供用户安装时参考。 
直通式结构

角式结构
平行式结构
多台并联式结构
配备专用开启机构的过滤器,无需外部起吊装置,即可拆卸顶盖。


订货须知
1、用户订货时请正确提供产品名称、规格型号、最高工作压力、工作温度、过滤精度、材质、连接法兰标准;
2、电机是否需防爆、是否户外工作;
3、特殊要求另行说明;
4、过滤精度的选择
一般来讲,过滤器的过滤精度选择高一些,截污量就大一些,而实际上对过滤器来讲并非过滤精度越高越好,通常只要满足工艺要求即可,特别是当水中含油时精度越高越容易糊网。因此,选择过滤精度时必须综合考虑,以下参数供选择Johnson滤网精度时参考:
(1) ZJDLⅢ型反冲洗式自洁式过滤器、ZJDP型导流式自洁式过滤器的Johnson滤网的V型断面必须尖端朝外,选用过滤精度为0.2-0.30mm时允许浊液含油量≤10mg/L; 选用过滤精度为0.10-0.20mm时允许浊液含油量≤5mg/L;
(2) ZJD系列刷式、ZJD系列吸吮扫描式自洁式过滤器允许浊液中含油量比上列参数再提高50%。
5.前置粗过滤器
由于管道施工及管理上的不完善,在实际操作中常发现管道系统中进入那些未被清除的大杂物,如钢板边角料头、焊条头、木块、砖、石块以及破布等直接进入过滤器,导致过滤器不能正常工作。为此,用户可在过滤器的入口设置粗过滤器,以滤去管路中的大杂质,保护过滤器的正常运行。(我厂生产的F B系列管道过滤器即可作为前置粗过滤器)
供货范围
1、过滤器主机
2、电动排污阀
3、手动排污阀
4、电 控 箱
5、配对法兰及前置粗过滤器根据用户要求提供



