袋式精细过滤器
一、产品简介
ZJF系列袋式精细过滤器主要由滤袋、滤框、壳体三部分组成一个简便、高效、经济的过滤系统,待过滤物料由上口进入滤袋,杂质被截留在滤袋内,从而得到干净的流体。由于其操作方便,成本低廉、处理量大、过滤精度高。因而广泛用于石油产品、化工产品、油漆、食品饮料、污水等方面的过滤。
ZJF系列袋式精细过滤器适用于任何微细颗粒(小于1000ppm)的过滤,精度范围可从1至1000μm及处理量从1至1000m3/h的液体过滤。
二、常用结构及参数
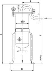
ZJF-D型单袋式精细过滤器

注:表中流量以水为计算依据,工作压力≤1.0MPa

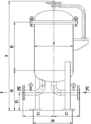
ZJF-D型多袋式精细过滤器
ZJF-D型单袋式精细过滤器
ZJF-BⅡ型多袋式精细过滤器

注:表中所列流量以水为计算依据
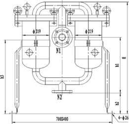
ZJF-H型并联式袋式精细过滤器

ZJF-H型并联式袋式精细过滤器

三、常用滤袋介绍
滤袋是袋式精细过滤器的核心件,构成滤袋材料有聚丙烯、聚酯、聚芳酰胺、聚四氟乙烯、尼龙、羊毛等,过滤精度1-1000μm,选用时应根据不同介质,过滤时的温度、化学条件来确定。

注:●表示性能优异
单丝及多丝网袋
是一种表面型过滤织布结构,经过高温定型,以防在过滤过程中造成滤孔扩张。因而具有绝对精密过滤等级,捕捉杂质于其滤材表面上,滤袋可反复清洗再使用,具体详见下表。

注:●表示有此规格
针毡布滤袋
利用深层过滤原理工作,针毡布滤袋可滤除大量的固体或凝胶类软性质。100%纯净纤维用针刺方法做成立体三维过滤层面,较大颗粒杂质被滤袋表面捕捉,而微细颗粒则被捕捉于滤材深度中,因而是一种深度性滤材。过滤精度从1-200μ m。针毡布滤袋具有成本低、过滤面积大、压差小的优点,是最经济的过滤方式,针毡布滤袋表面经过特殊处理,确保纤维无脱落,但滤袋不可清洗和再使用。具体见下表。
注:●表示有此规格
熔吹无纺布滤袋
由多层聚丙烯微纤丝组成的深度性无纺布滤材。内层-由聚丙烯针毡布组成,有初过滤功能;中间层-由聚丙烯微纤丝的熔吹无纺布组成,过滤1-100μm,过滤效率达98%;外层-由聚丙烯纺织纤维组成,有高强度及无纤维脱落的功能。熔吹无纺布滤袋过滤精度:1、3、5、10、25、50、100μ m。我厂提供的滤袋有二种规格,单一长度:外径约φ100,长度430;双倍长度:外径约φ180,长度860。
四、用户须知
为更好地帮助您选择精细过滤器,请您正确填写下表:

五、供货陈述
1.本公司为用户提供单台或多台组合、成套的自控设备(单台设备至本体进出口法兰为止)。
2.对采用反冲洗系统精细过滤器或双桶切换式全自动反冲洗精细过滤器,用户应在订货时提出。
3.本公司可根据用户特殊要求设计、制造特殊规格的精细过滤器。



