• 1
  • 2
  • 3
产品展示

QX、QH型高压离心通风机消声器

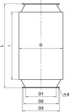
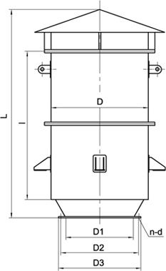
一、结构形式
  本系列消声器为一种阻抗复合式消声器,其阻性段采用列管吸声通道,抗性段采用了多室抗性腔直管通道及十字形吸声片形式,从而保证了在较宽频带范围内具有足够的消声量。
二、适用范围
  主要用于各种系列(8-18型、9-27型)的高压离心通风机,用于降低进、出风口等空气动力性噪声。
  QX型两端均为法兰联接可串接于管道中。
  QH型一端为防雨帽,仅供设置在室外管道末端和封闭式机房进风口选用。
三、规格、性能、外形尺寸

 
QX型高压离心通风机消声器
QH型高压离心通风机消声器

上页下页
访问电脑版