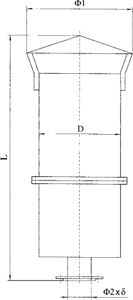
产品展示 更多产品分类 过滤设备 静态混合设备 加热设备系列 动态混合设备 消声器 纸张专用设备 管用专用小型设备 油罐附件系列 煤气管道排水器 KODP型低压氧气放散消声器 一、结构形式 本系列消声器是一种扩容阻抗复合式消声器,内部结构采用了抗燃性能好的不锈钢及铝合金。二、适用范围 本系列消声器适用于降低氧气压缩机后放散氧气时产生的动力性噪声。适用压力:p≤0.6M P a,消声量:30~40d B(A),使用温度:200℃以下。三、规格、性能、外形尺寸 上页下页