新型高效石化净化装置(聚结分离装置)
一、用途
聚结分离装置主要用于分离汽油、航空燃料和柴油中的苟性碱以及液化石油气中的胺,降低再加工费用,减少维护,从而提高产品质量。
二、适用介质
聚结分离器可通过更换不同材料的滤芯以适应不同的介质:
1、航空燃料、汽油、煤油、柴油;
2、液化石油气、石焦油、苯、甲苯、二甲苯、异丙苯、聚丙苯等;
3、汽轮机油和其他低粘度的液压油、润滑油;
4、环乙烷、异丙醇、环乙醇、环乙酮等;
5、其它碳氢烃类化合物。
三、主要性能参数
※起始压差:<0.03MPa
※最大允许工作压差:0.1MPa
※最高工作温度:80℃
※脱水能力:水含量最高可达15%
※滤芯结构强度:>0.7MPa
※过滤精度:最高可达1μm
※出口游离水含量:<0.03ppm(达到API最新标准)
※壳体设计压力等级1.0MPa和1.6MPa或更高
※材质:Q235-B、16MnR或不锈钢
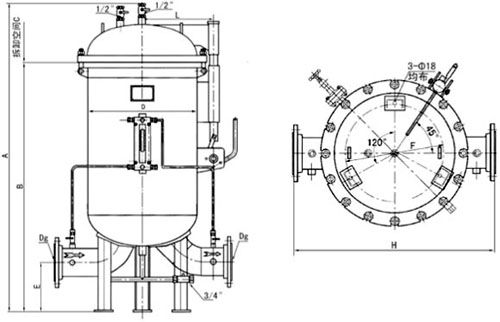
四、工作原理图示及各部分名称
聚结分离器内部装有两种功能不同的滤芯——聚结滤芯和分离滤芯。欲脱水的介质由聚结分离器进口进入壳体,由聚结滤芯托盘分配与每一个聚结滤芯,液体从聚结滤芯内部流向外部,经过过滤、破乳、聚结、沉降四个过程,将乳化的液体破乳,再将破乳后的小水珠聚结成大水珠,沉降到壳体底部。部分未来得及沉隆的小水珠随液体流向分离滤芯,分离滤芯由特种材料制成,具有良好的憎水性能,小水珠被完全有效地拦截在滤芯外面,再次聚结成大水珠沉降,从而确保有效地脱除水份。沉降到壳体底部的水份由液位计显示出来,可定期不定期地将水份及污物通过排水阀排出。分离掉水份的介质由分离滤芯托盘汇集后,从分离器出口流出。

2、排气阀
3、聚结分离器上盖
4、O形密封圈
5、聚结滤芯
6、聚结滤
7、引压管
8、聚结分离器进口
9、取样口
10、液位计接口
11、聚结分离器出口
12、分离滤芯
13、手动杠杆开盖装置
14、压差计五、型号说明



我公司可根据用户要求对聚结分离器进行特殊设计及制造,臂如设计成卧式。 上页下页



