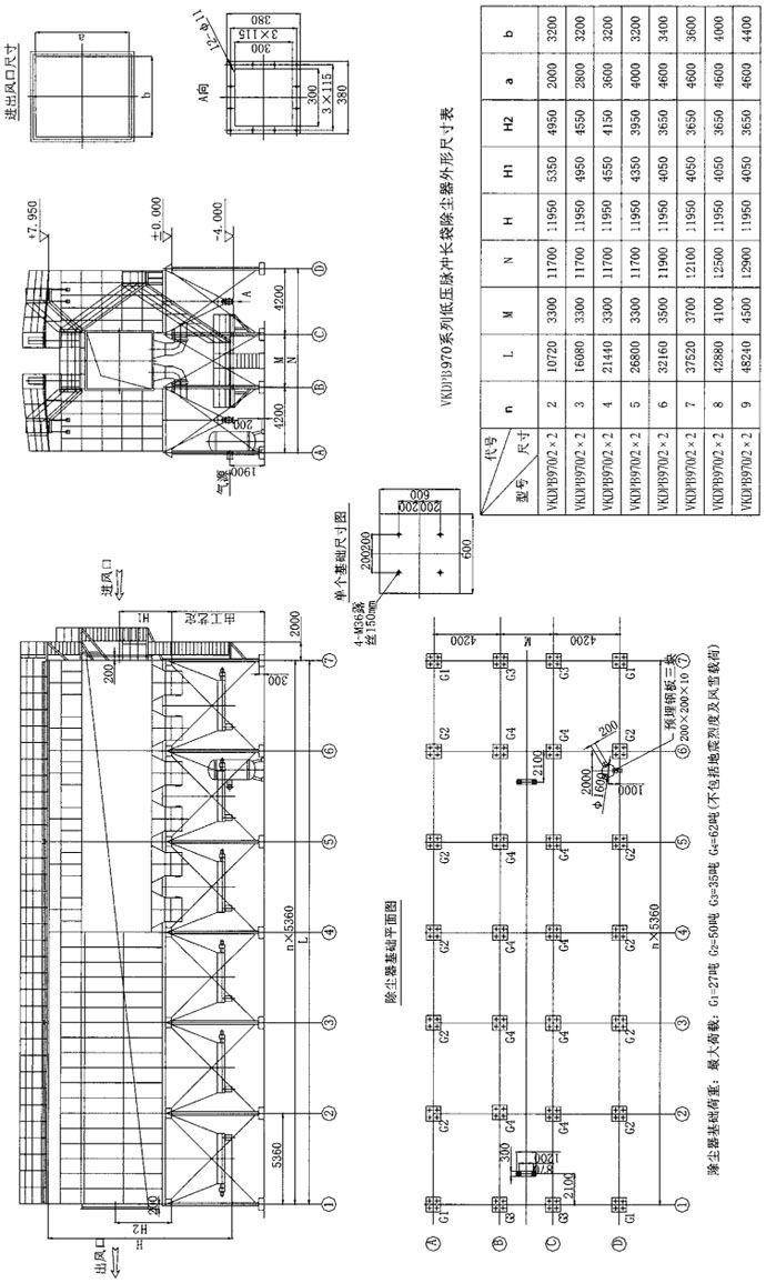
产品展示 更多产品分类 过滤设备 静态混合设备 加热设备系列 动态混合设备 消声器 纸张专用设备 管用专用小型设备 油罐附件系列 煤气管道排水器 KDPB970系列低压脉冲长袋除尘器外形图(双排) 已是第一页下页