阻 火 器
F P型阻火器是用来阻止管道内易燃气体或易燃液体蒸气因意外引燃,火焰沿管道蔓延引起爆炸的安全装置,广泛应用于火炬系统、加热炉燃料气系统、石油气体回收系统或其它易燃气体系统等输送或排放易燃气体的管道上,能有效地保证整个系统装置及使用点的安全运行。




FP-I型
2、FP-II型阻火器

FP-II型
3、FP-III型阻火器

FP-III型
4、FP-IV型阻火器

FP-IV型
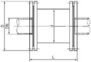
5、FP-V型阻火透气罩表5



FP-V型
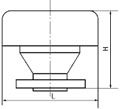
6、FP-VI(T)型氧气管道阻火器氧气管道阻火器和氧气管道阀门后阻火器采用特种铜合金和不锈钢、碳钢焊接而成。它在氧气管道中具有阻火特点,可有效地切断火源,杜绝管道中燃爆事故的发生,在管道输氧过程中,愈来愈显示它的必要性与阻燃的优越性。
注:①1、3材质为0Cr18Ni9Ti、1Cr18Ni9Ti或20;
②2材质为T1、T2、Tu1、Tu2、B10。

GZW-Ⅵ型




