LP型防泄漏型煤气排水器
一、产品简介
防泄漏型煤气排水器主要由煤气排水器本体和煤气排水器防止泄漏煤气装置组成。其主要用于架空煤气管道冷凝水的排除。当煤气管网压力波动或其它原因引起的排水器有效水位异常降低,造成煤气泄漏时,通过煤气排水器防止泄漏煤气装置,可有效地遏止煤气的外泄,防止煤气着火、爆炸、中毒等恶性事故的发生。
本产品设计独特,结构紧凑,安装维护方便,使用寿命长,同时便于观察排水器密封水位,因而提高了工作效率,减轻了劳动强度,尤其在异常时能有效地遏止泄漏煤气造成的灾害。
二、功能描述
防泄漏型煤气排水器主要功能:一是利用水封高度封住煤气,排出冷凝水;二是可反映排水器内密封水位的高低;三是一旦排水器内水封被击穿,通过煤气排水器防止泄漏煤气装置,即可封住煤气,防止煤气大量外泄。
三、型号标注

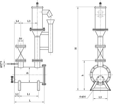
1、水封高度≤2000mmH2O卧式排水器外形尺寸见图一、表一
2、水封高度≤2000mmH2O立式圆形排水器外形尺寸见图二、表二
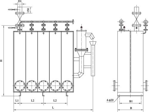
3、水封高度>2000mmH2O方形排水器外形尺寸见图三、表三
4、水封高度>2000mmH2O立式圆形排水器外形尺寸见图四、表四
5、水封高度>7000mmH2O高压多室排水器外形尺寸见图五、图六、表五

图一、水封高度≤2000mmH2O防泄漏型卧式煤气排水器外形图
表一、水封高度≤2000mmH2O防泄漏型卧式煤气排水器外形尺寸

图二、水封高度≤2000mmH2O防泄漏型立式煤气排水器外形图
表二、水封高度≤2000mmH2O防泄漏型立式煤气排水器外形尺寸

图三、水封高度>2000mmH2O防泄漏型方形煤气排水器外形图
表三、水封高度>2000mmH2O防泄漏型方形煤气排水器外形尺寸


图四、水封高度>2000mmH2O防泄漏型圆形煤气排水器外形图
表四、水封高度>2000mmH2O防泄漏型圆形煤气排水器外形尺寸

图五、水封高度>7000mmH2O防泄漏型卧式圆形煤气排水器外形图

图六、水封高度>7000mmH2O防泄漏型方形煤气排水器外形图
表五、水封高度>7000mmH2O高压防泄漏型煤气排水器外形尺寸
1、煤气的最高和最低工作压力或要求的水封高度;
2、冷凝水入口管径及数量(如单管、双管等);
3、伴热的形式;
4、是否带保温层。
5、排水器接口法兰采用JB/T81-94 PN1.0MPa;
6、特殊要求。 上页下页



