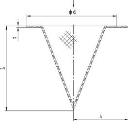
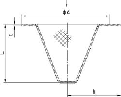
产品展示 更多产品分类 过滤设备 静态混合设备 加热设备系列 动态混合设备 消声器 纸张专用设备 管用专用小型设备 油罐附件系列 煤气管道排水器 SBV尖顶锥形过滤器 SBVⅠ尖顶锥形过滤器 DN20-600、PN≤5.0MPa,(见图十四、表13) 图十四 表13 SBVⅡ平顶锥形过滤器 DN25-600、PN≤2.5MPa,(见图十五、表14) 图十五 表14 上页下页