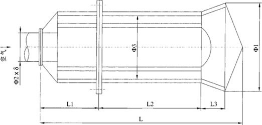
产品展示 更多产品分类 过滤设备 静态混合设备 加热设备系列 动态混合设备 消声器 纸张专用设备 管用专用小型设备 油罐附件系列 煤气管道排水器 KAP型压缩空气排放消声器 一、结构形式 本系列消声器是一种阻抗复合消声器,阻性段采用列管吸声通道,抗性段采用小孔喷注,可与不同风量的空压机相配套。 二、适用范围 主要用于降低空气压缩机放散空气时产生的动力性噪声。压力p≤0.6M P a,消声量≥30d B(A),温度T≤200℃,本消声器为立式安装。 三、规格、性能、外形尺寸KAP型压缩空气排放消声器 上页下页