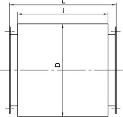
产品展示 更多产品分类 过滤设备 静态混合设备 加热设备系列 动态混合设备 消声器 纸张专用设备 管用专用小型设备 油罐附件系列 煤气管道排水器 CZ型轴流风机消声器 一、结构形式 CZ型轴流风机消声器 二、适用范围 主要用于降低各种室内进排风、矿井通风用轴流风机的空气动力性噪声。消声量≥12d B(A),压力损失≤50Pa 三、规格、性能、外形尺寸CZ型轴流风机消声器 上页下页