呼吸阀
一、简 介
呼吸阀是固定在储罐顶上的通风装置。以保证罐内压的正常状态,防止罐内超压或超真空使储罐遭受损坏,也可减少罐内液体挥发损耗。
根据国家《石油化工设计防火规范》(G B50160-92)的规定:“甲、乙类液体的固定顶罐,应设阻火器和呼吸阀”,而我国呼吸阀产品类型单一,还满足不了石油化工各部门的需要。为了解决上述问题,我公司研制开发W X型系列新产品。该产品具有类型多,规格齐全、结构紧凑、重量轻、通风量大、泄漏小等优点。产品有单呼阀、单吸阀、呼吸阀,各种结构型式均可与阻火器组合构造,也可配制所需的接管。
二、代号说明
1、呼吸阀代号以WX表示,WXF为阻火呼吸阀代号。
2、呼吸阀类型代号以吸入和呼出口有否接管来分类,共8种,见表1
3、表示主体材料见表2
三、标志意义

四、操作压力和使用环境温度
呼出压力:B、+980Pa C、+1750Pa D、+4KPa E、+18KPa
呼入压力:B、-295Pa C、-295Pa D、-0.5KPa(操作压力指标也可以由用户指定)
使用环境温度:-30℃~60℃
五、工作介质
汽油、煤油、柴油、芳烃、硫、空气等,或其他石油化工物料,阻火类别的选用“H G J21-89”进行,选I I A或IIB级由用户指定。
六、制造和检验标准
参照“SY7511-87”“GB5908-86”等标准进行制造和验收。
注:法兰连接采用HG20592-97,PN1.0MPa,也可以根据用户需要,按HGJ、JB、ANSI-B16.5、JIS等其它标准进行制造。
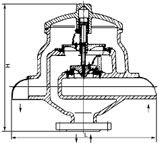
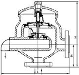
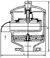
WX1型呼吸阀
DN50-400
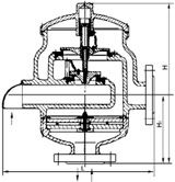
WXF1型阻火呼吸阀
DN50-400

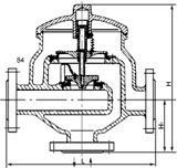
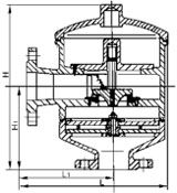
WX2型带双接管呼吸阀
DN50-250
WXF2型带双接管阻火呼吸阀
DN50-250

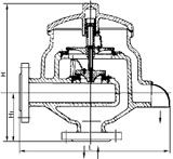
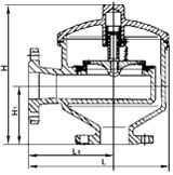
WX3型带吸入接管呼吸阀
DN50-250

WXF3型带吸入接管阻火呼吸阀
阀DN50-250


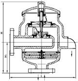
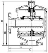
WX4型带呼出接管呼吸阀
DN50-250

WXF4型带呼出接管阻火呼吸阀
阀DN50-250


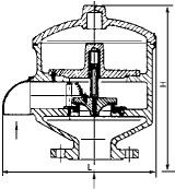
WX5型单呼阀
DN50-250

WXF5型阻火单呼阀
DN50-500


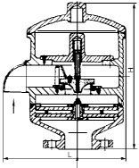
WX6型单吸阀
DN50-250

WXF6型阻火单吸阀
DN50-250


WX7型带接管呼出阀
DN50-300
WXF7型带接管阻火呼出阀
DN50-300


WX8型带接管吸入阀
DN50-250

WXF8型带接管阻火吸入阀
DN50-250




